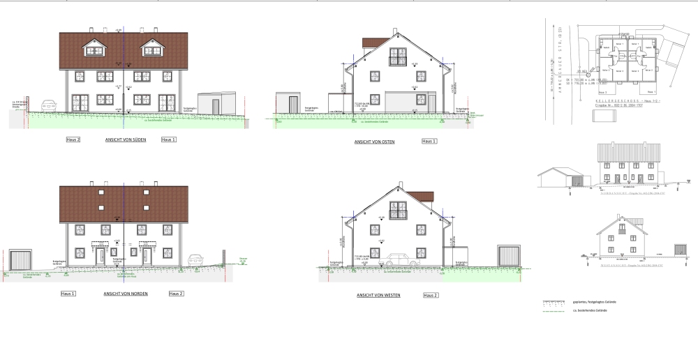
Doppelhaushälften in Peiting
Im Süden Peitings werden von der Konstruktiv Bau GmbH vier Doppelhaushälften in massiver Ziegelbauweise als KfW-55-Effizienzhäuser nach EnEV-2014 mit Verschärfung ab 2016 gebaut.
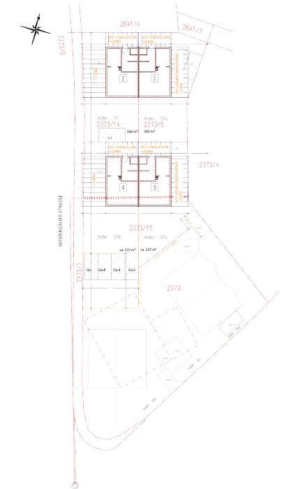
Die Grundstücke liegen an der Ammergauer Straße und an der Ramsauer Straße. Die Häuser sind nach Süden bzw. Südwesten ausgerichtet.
Die massiv gebauten Häuser beinhalten einen Keller, in dem der Hobbyraum ausbaufähig ist. Das Dachgeschoss wird als Studio ausgebaut.
Folgende Leistungsmerkmale und Ausstattungen sind in jedem Haus enthalten:
- KfW-55-Effizienzhaus nach EnEV-2014 mit Verschärfung ab 2016
- Massiver Ziegelbau mit "Poroton T7" (Außenwände 36,5 cm hochwärmedämmend) für wohltemperiertes Raumklima und als exzellenter Wärmespeicher
- Luft-Wasser-Wärmepumpe mit Photovoltaik-Unterstützung
- Fußbodenheizung in EG, OG und DG
- Studio im DG ausgebaut, mit Gaube
- Kamin (LAS) für Anschluss eines Kaminofens
- Hobbykeller ausbaubar
- Massive Fertiggarage (gegen Mehrpreis) und ein Stellplatz
- Lichtdurchflutete Räume durch große Fensterflächen
- Isolierglasfenster "Schüco Living 82" (3-fach) mit Sprossen
- Leichtgängige Rollläden im EG und OG (ausser Bad und WC)
- Dachfenster im Treppenhaus
- Mehrschicht-Holzparkett "Meister"
- Massive Vollholztreppe mit Edelstahlsprossen von "Kohler"
- Sanitär-Markenausstattung "Sanibel"
- Hochwertige Fliesen "Villeroy&Boch"
- Zahlung nach MaBV (Makler- und Bauträger-Verordnung)
- Bauleistungs-, Bauherrenhaftpflicht- und Feuerrohbauversicherungen
- Baubegleitende Begutachtung durch TÜV oder Dekra
- Schlüsselfertig - Erschließungskosten inbegriffen
Folgende Sonderwünsche können gegen Mehrpreis realisiert werden:
- Dekoratives Vordach
- Mülltonnenbox 2-fach
Eigenleistungen sind möglich (Malerarbeiten innen, Fliesenarbeiten, Bodenbeläge, Innentüren setzen), soweit sie den Baufortschritt nicht verzögern.
| Haus
|
|
1 |
2 |
3 |
4 |
| Adresse: Ammergauer Str. |
|
37a |
37 |
37c |
37b |
| |
|
|
|
|
|
| Wohnfläche: |
m² |
150 |
150 |
150 |
150 |
| Nutzfläche: |
m² |
52 |
52 |
52 |
52 |
| Grundstücksfläche: |
m² |
293 |
266 |
253 |
288 |
| Zimmer: |
# |
5 |
5 |
5 |
5 |
| Schlafzimmer: |
# |
3 |
3 |
3 |
3 |
| Badezimmer: |
# |
1 |
1 |
1 |
1 |
| Gäste-WC: |
# |
1 |
1 |
1 |
1 |
| Keller: |
|
ja |
ja |
ja |
ja |
| Baujahr: |
|
2017 |
2017 |
2017 |
2017 |
| Bezugsfrei |
|
2017 |
2017 |
2017 |
2017 |
| Anzahl Garagen: |
# |
1 |
1 |
1 |
1 |
| Anzahl Stellplätze |
# |
1 |
1 |
1 |
1 |
Bericht der Schongauer Nachrichten:
Doppelhäuser auf altem Bauernhof